Apartments In Baltimore
Spacious Studio, 1, 2 Bedroom Apartments For Rent Baltimore MD – Luxury Rental Amenities at Bolton House
Baltimore, MD
Studio, 1 & 2 Beds
Accepting Applications
Limited Time Move-In Specials!
For a limited time only, enjoy reduced rates on our one-bedroom apartments!! They are currently running for $1090/month while supplies last! Give us a call today to find the perfect one-bedroom.
Restrictions Apply. Offer valid while supplies last. Call us for details. Equal Housing Opportunity.
Premier Studio, 1 & 2 Bedroom Apartments For Rent in Baltimore, MD – Bolton House
Experience modern city living at Bolton House, where comfort, convenience, and location come together in perfect harmony. We offer a variety of stylish studio apartments, each tailored to meet your specific needs. Whether you are looking for studio or 1- and 2-bedroom apartments for rent, our selection in Baltimore, MD, provides the ideal combination of functionality and style.
About Us
Located in the desirable neighborhood of Bolton Hill
Situated in the desirable neighborhood of Bolton Hill, Bolton House offers studio, one, and two-bedroom apartments for rent overlooking downtown Baltimore, MD. Residents enjoy fantastic city views and a super-convenient location close to Maryland Institute College of Art, the University of Baltimore, and John Hopkins University. Meyerhoff Symphony Hall and The Walters Art Museum are just two of the city’s famed attractions within walking distance of your Midtown apartment home.
Studio, 1 & 2 Bedroom Apartments
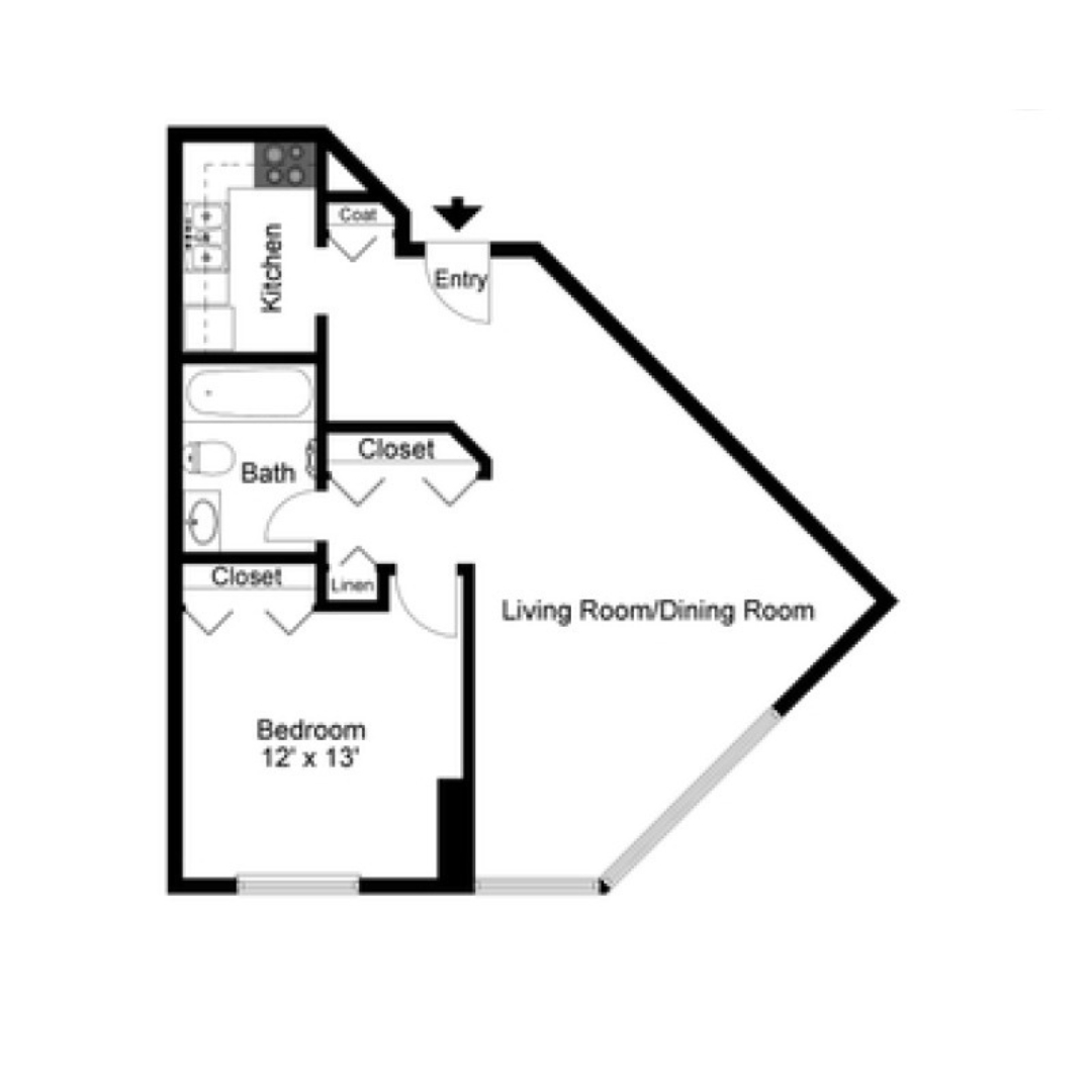
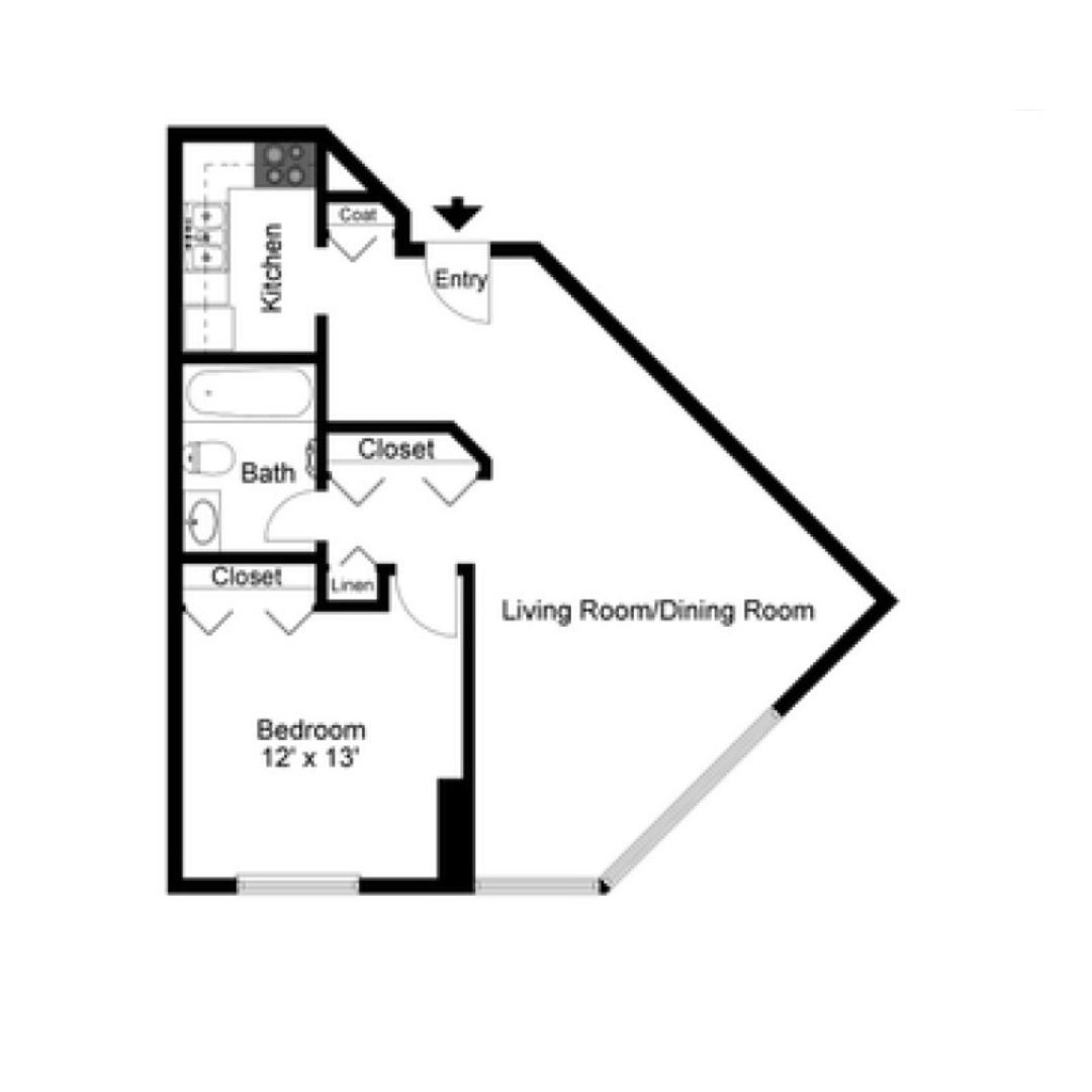
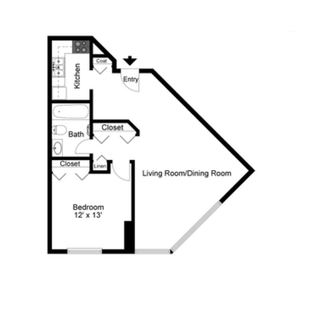
Claim your ideal urban space at Bolton House. Our high-rise apartment community offers three-floor plans with unique character and livability. Studio apartments are sized at 520 square feet. One-bedroom layouts measure 640 square feet, while two-bedroom floor plans cover 710 square feet. All apartment homes feature ample closet space to keep you organized, and kitchens equipped with Energy Star appliances for easy meal prep and cleanup. Schedule your tour today!
What Sets Us Apart?
We stand out as more than just a place to live; it’s a community. Our apartments for rent have modern design, like spacious layouts, large windows for natural light, and updated kitchens. Residents enjoy high-quality amenities, including secure access, on-site parking, and 24-hour maintenance. Our studio, 1- and 2-bedroom apartments provide stunning city views and easy access to restaurants, entertainment, and historic landmarks.
Studio 1 Bathroom
520 Sq. Ft.
$1,332
1 Bed 1 Bath
640 Sq. Ft.
$1,394
2 Bed 1 Bath
710 Sq. Ft.
$1,664
Simplify Your Busy Schedule
Amenities
At Bolton House, you’ll appreciate everyday features and amenities that simplify a busy schedule. Uniquely designed floor plans bring an unconventional yet practical form to your living space. There’s room to be comfortable, with generous closet storage to keep your world neat. Plank flooring looks good and is easy to care for, while energy-efficient appliances put home-cooked meals on the menu.
Work out at our 24-hour fitness center, and never worry about finding a parking space again with free on-site parking. It’s good to know that if something isn’t working right, our 24/7 maintenance team will be on it. Bolton House is your home for comfort, and your home base for work, school, and city fun.
Apartment & Community
Amenities
Fantastic City Views
Unique Floor Plans
Studio, 1 & 2 Bedrooms
Ample Closet Space
Stylish Vinyl Plank Flooring
Vertical Blinds
Utilities Included
Individual Controlled A/C & Heat
Energy Star Appliances
Controlled Building Access
24-Hour Fitness Center
Conference & Meeting Room
On-Site Laundry
Free On-Site Parking
Close to Bus Lines & Metro
Near to Colleges & Universities
Pet-Free Community
Close to Local Attractions
Have a Question?
Connect With Leasing Today
Information
Live Midtown
Bolton House’s location puts you less than 5 miles from all that Baltimore has to offer!
- 1 Block from the Meyerhoff Symphony Hall
- 1 Mile from The Walters Art Museum
- Less than 2 miles from the Maryland Zoo
- Minutes from Baltimore Inner Harbor
- Minutes from National Aquarium
- Subway & Bus Line Within Walking Distance
Services That Make Living Effortless
We provide essential services to simplify your lifestyle. Enjoy 24/7 maintenance, secure access, and fast on-site management. Our Hassle-free rental process and resident portal make rent payments and service requests quick and easy. From local advice to move-in assistance, we are here to offer a simple and stress-free living experience in every studio, 1-and 2-bedroom apartments.
Your Next Home in Baltimore, MD
At Bolton House, every detail is created to elevate your lifestyle, from elegantly designed interiors to exceptional services. Take a closer look at our units on the Floor Plans page, explore our Gallery to get a feel for your future home, or go through the entire list of Amenities that set us apart. Ready to make a move? Contact us today to schedule a tour and discover your ideal apartment.
Certified Resident
Reviews
I think Bolton House 🏠 is one of the best apartment building in the area for the price and availability.
It’s close to downtown and Charles Street communities, 3 minute walk to the Meyerhoff Symphony Hall, and residential parking.
Really nice place to live. I love the access to all public transportation, and the view is amazing!
THE APARTMENTS ARE NICE INSIDE THE FLOOR PLAN IS ABSOULETLY LOVLY
Enjoy Your Everyday Life
Contact Leasing!
Copyright © 2026 Bolton House | Powered By GREENstick

